Please take a moment to complete this survey below

Library's collection Library's IT development Cancel

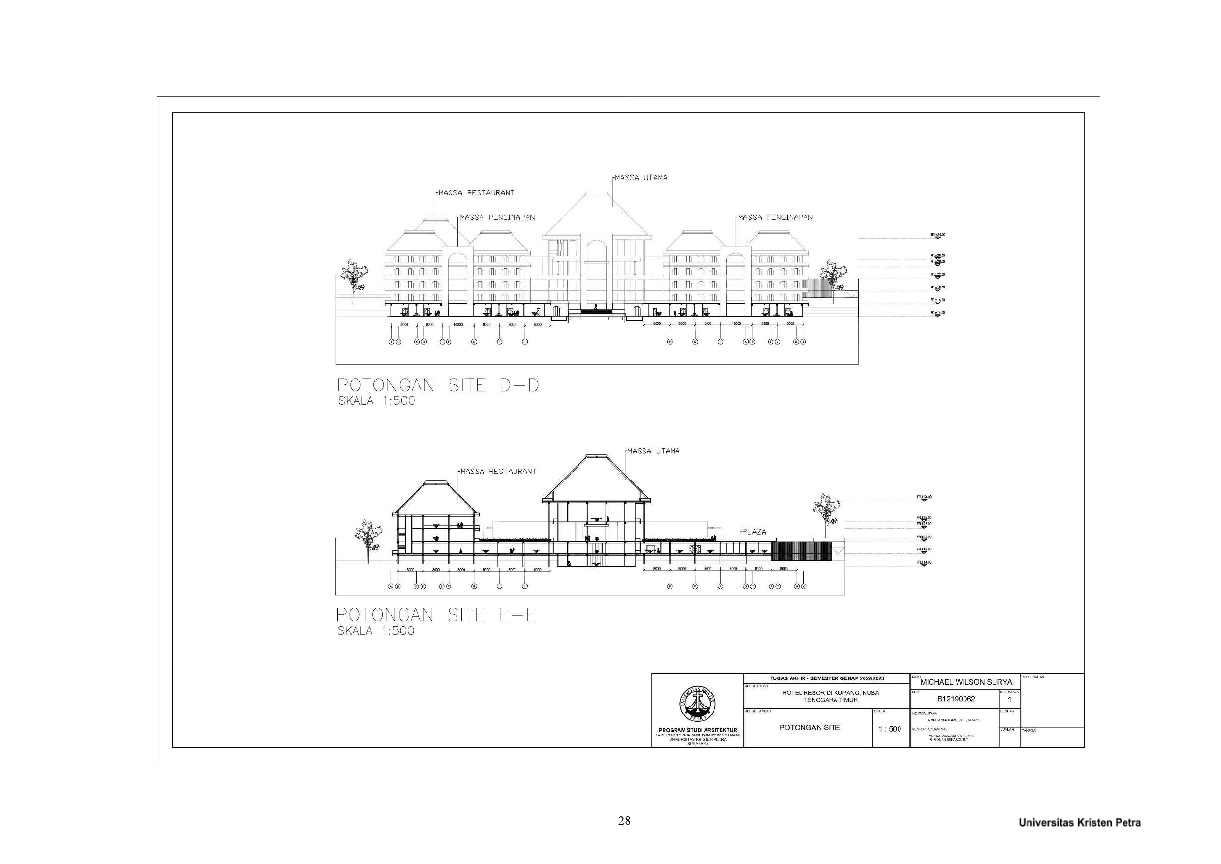
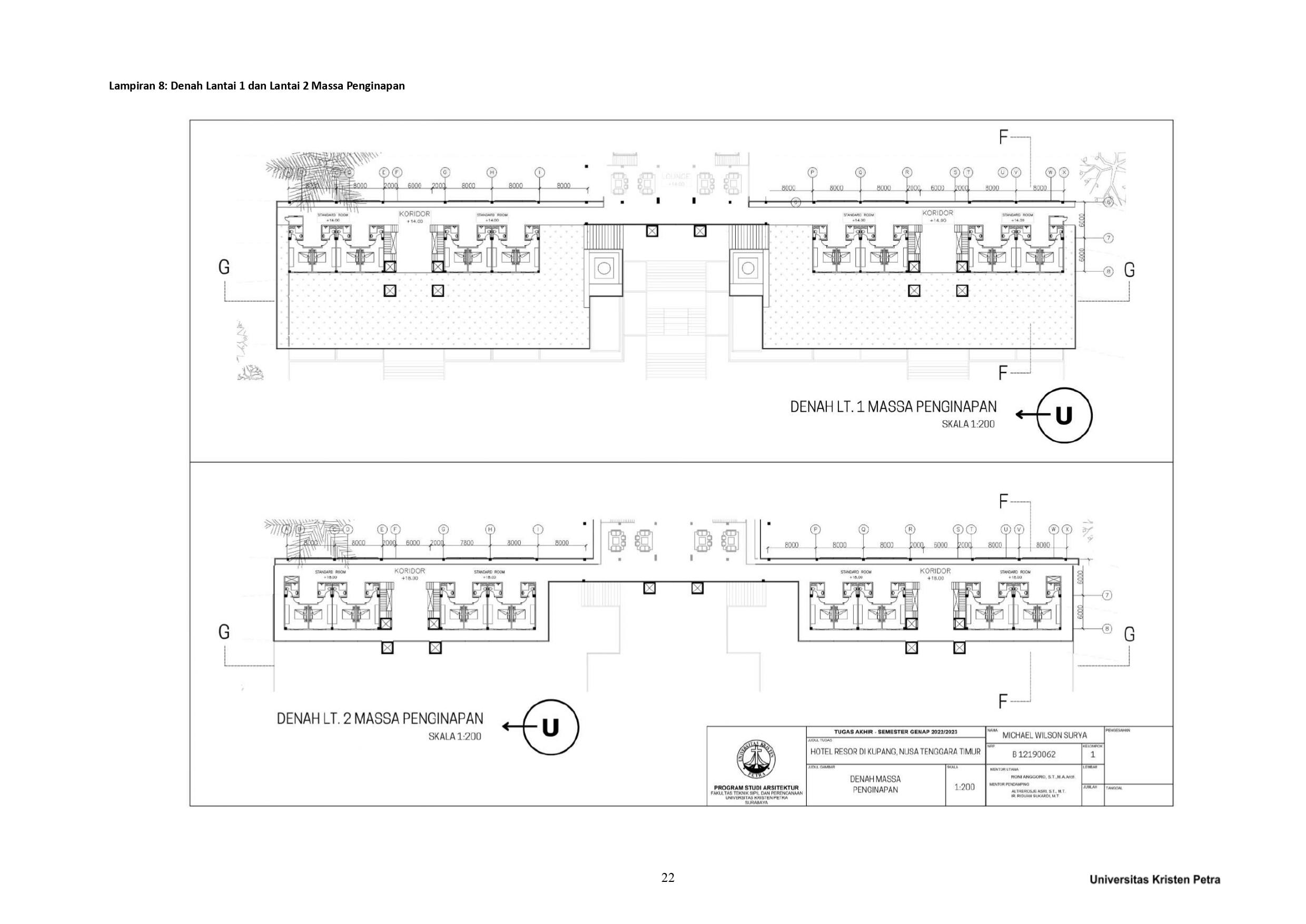
Hotel dan resor di Kupang, Nusa Tenggara Timur

Kota Kupang merupakan ibu kota Provinsi Nusa Tenggara Timur (NTT) yang memiliki potensi pariwisata yang besar. Kota Kupang memiliki rangkaian pantai karang yang indah dan juga memiliki banyak objek wisata yang unik dan jarang ditemui di daerah lain. Budaya khas NTT, seperti kain tenun tradisional, rumah adat, dan masakan tradisional memiliki potensi yang sangat besar untuk mendatangkan wisatawan lokal dan mancanegara. Dengan potensi wisata yang besar ini, dirancanglah sebuah "Hotel Resor di Kupang" yang terdesain untuk menunjukkan keindahan alam kota Kupang sekaligus menampilkan kebudayaan khas NTT. Fasilitas penginapan ini dirancang dengan suasana tenang dan tentram, serta jauh dari keramaian kota dengan desain arsitektural yang memberikan pengalaman berlibur dan bersantai terbaik dengan menyaksikan keindahan pantai dan budaya NTT. Desain "Hotel Resor di Kupang" ini menggunakan pendekatan arsitektur vernakular dan teori “Hybrid Architecture” oleh Robert Venturi, untuk menampilkan kekhususan arsitektur dan desain lokal.

Creator(s)
  • (B12190062) MICHAEL WILSON SURYA
Contributor(s)
  • Roni Anggoro → Advisor 1
  • Altrerosje Asri → Advisor 2
  • Riduan Sukardi → Advisor 3
  • Rully Damayanti → Examination Committee 1
  • Luciana Kristanto → Examination Committee 2
  • Samuel Hartono → Examination Committee 3
  • Stephanus Wirawan D., S.T., M.Arc. → Examination Committee 4
Publisher
Universitas Kristen Petra; 2023
Language
Indonesian
Category
s1 – Undergraduate Thesis
Sub Category
Laporan Perancangan Arsitektur
Source
Laporan Perancangan Arsitektur No. 00024463/ARS/2023; Michael Wilson Surya (B12190062)
Subject(s)
  • HOTELS--DESIGNS AND PLANS
  • RESORTS--DESIGNS AND PLANS
File(s)

Similar Collection

by creator, contributor, or subject