Please take a moment to complete this survey below

Library's collection Library's IT development Cancel

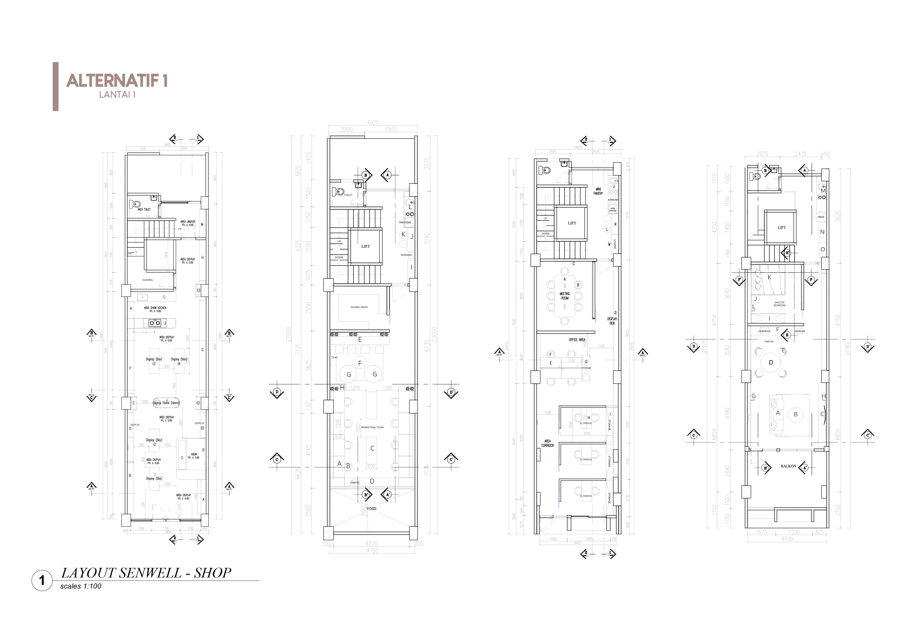
Perancangan kantor Senwell dengan pendekatan green design pada era new normal dalam pelaksanaan leap industrial experience di perusahaan Beta Design Studio

Munculnya pandemi Covid-19, membuat kluster perkantoran memiliki resiko penularan paling tinggi. Seperti diketahui bahwa virus corona dapat menyebar terutama di ruang tertutup sehingga keselamatan karyawan menjadi hal utama bagi perusahaan. Karyawan bisa mengalami stress dan kecemasan saat beradaptasi dengan new normal yang juga akan berdampak pada hasil pekerjaannya ke depan. Metode desain yang digunakan dalam perancangan ini adalah design thinking (understand, observe, point of view, ideate, prototype, dan test.) dengan memperhatikan kebutuhan pengguna sehingga kantor dirancang dengan menggunakan pendekatan green design. Hasil perancangan kantor Senwell ini ditujukan untuk menghasilkan lingkungan kantor yang sehat dan aman bagi karyawan. Pendekatan green design diterapkan dengan membuat sirkulasi open plan, terdapat banyaknya bukaan, pemilihan material yang tahan lama, menggunakan lampu hemat energi, dan menambahkan tanaman pada dalam ruangan.

Creator(s)
  • (E11180109) CELINE PRAYOGO
Contributor(s)
  • Diana Thamrin,S.Sn. → Advisor 1
  • MARIA S.G POETIRAY → Advisor 2
  • Sriti Mayang Sari → Examination Committee 1
Publisher
Universitas Kristen Petra; 2022
Language
Indonesian
Category
s1 – Undergraduate Thesis
Sub Category
Perancangan Interior
Source
Perancangan Interior No. 00022160/DI/2022; Celine Prayogo (E11180109)
Subject(s)
  • INTERIOR DECORATION
  • OFFICE BUILDINGS--DECORATION
File(s)

Similar Collection

by creator, contributor, or subject