Please take a moment to complete this survey below

Library's collection Library's IT development Cancel

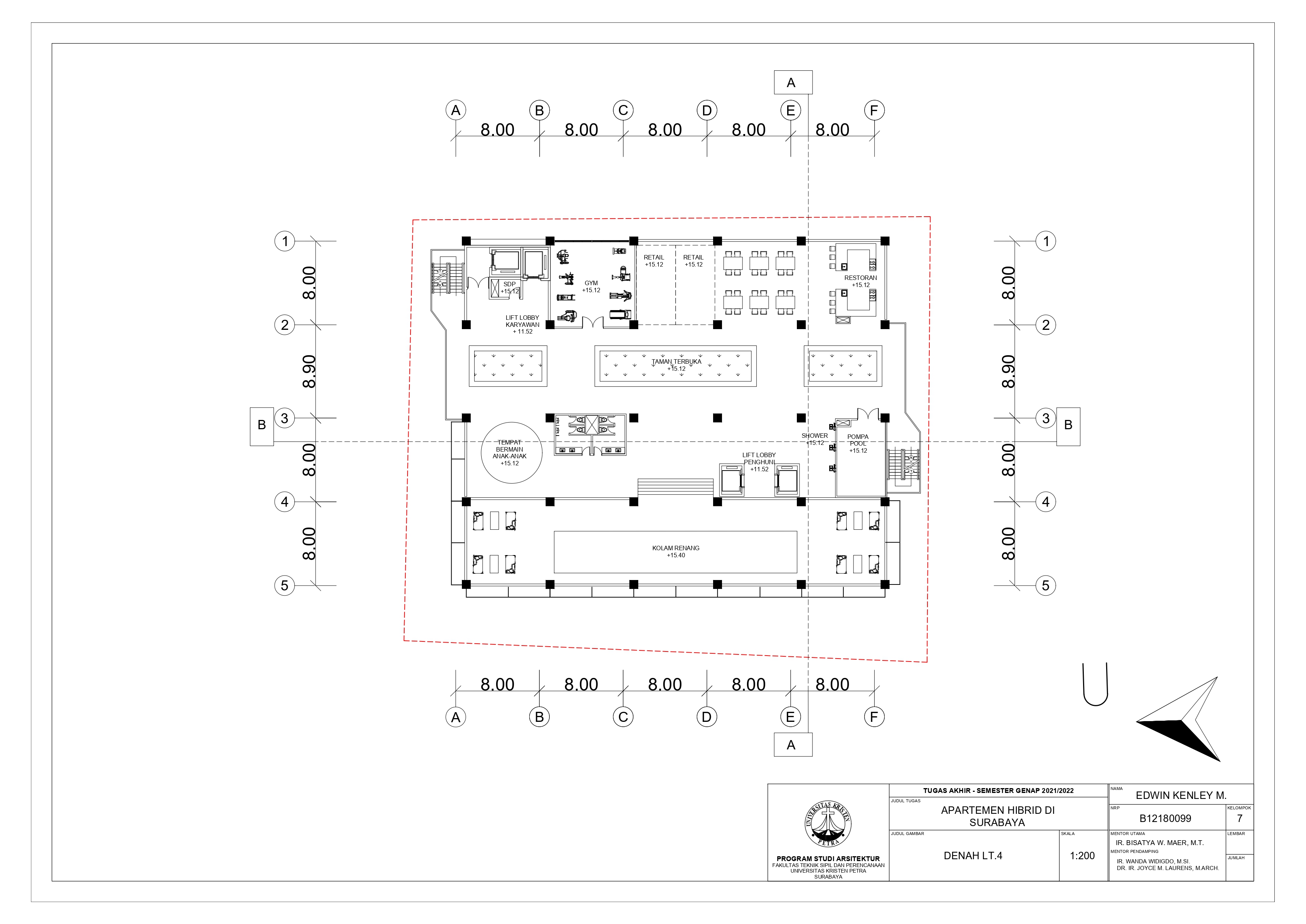
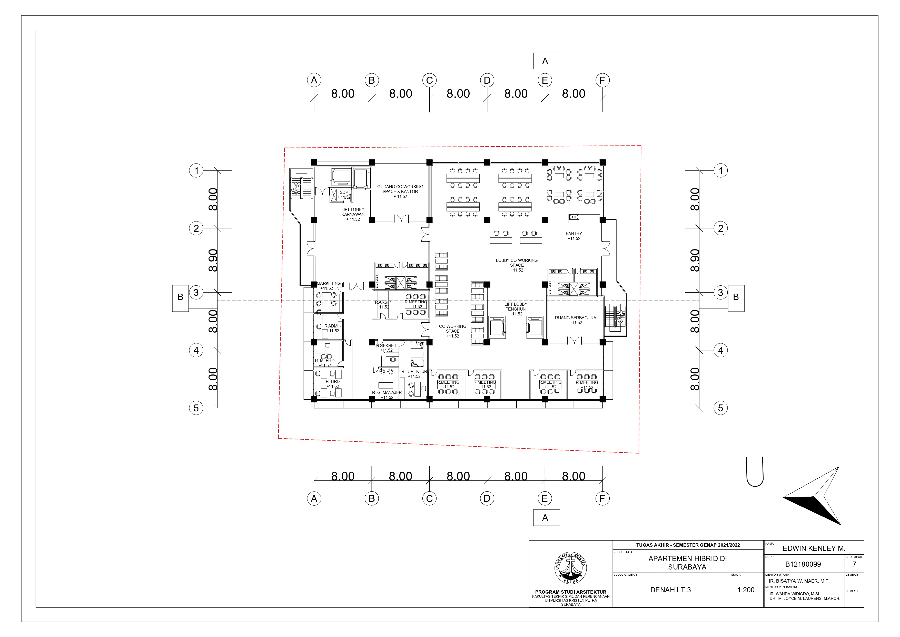
Apartemen hibrid di Surabaya

Surabaya merupakan kota kedua penghasil GDP tertinggi di Indonesia yang menyebabkan perkembangan kota Surabaya berpusat di daerah tertentu dan tidak merata. Hal ini membuat Bappeko Surabaya (2021) memprioritaskan beberapa daerah untuk dibangun hunian dan fasilitas yang memperbaiki kualitas kehidupan sesuai di RPJMD Surabaya 2021-2026. Sejak pandemi, kondisi memaksa masyarakat bekerja dari rumah atau membuat usaha baru secara online sehingga memerlukan hunian dan tempat kerja. Karena perlunya tempat kerja dan hunian, dipilihnya judul perencanaan apartemen hibrid yang merupakan upaya untuk menyatukan hunian dengan tempat kerja. Wirausahawan cenderung untuk membesarkan usaha dan mempunyai keluarga yang memerlukan ruang lebih besar. Oleh karena itu perlunya menerapkan konsep “open building” yang menunjang adaptibilitas dalam apartemen hibrid, khususnya pada unit apartemen hibrid dan studio. Penerapan ini dilakukan dengan pedekatan struktur bangunan serta pendalaman struktur dan variasi modul unit.

Creator(s)
  • (B12180099) EDWIN KENLEY MIHARJO
Contributor(s)
  • Bisatya Widadya Maer → Advisor 1
  • Wanda Widigdo Canadarma → Advisor 2
  • Joyce M.Laurens → Advisor 3
  • Feny Elsiana S.T., M.T. → Examination Committee 1
  • Altrerosje Asri → Examination Committee 2
  • Markus Ignatio Aditjipto → Examination Committee 3
Publisher
Universitas Kristen Petra; 2022
Language
Indonesian
Category
s1 – Undergraduate Thesis
Sub Category
Laporan Perancangan Arsitektur
Source
Laporan Perancangan Arsitektur No. 03024394/ARS/2022; Edwin Kenley Miharjo (B12180099)
Subject(s)
  • APARTMENT HOUSES--DESIGNS AND PLANS
  • APARTMENT HOUSES
File(s)

Similar Collection

by creator, contributor, or subject