Please take a moment to complete this survey below

Library's collection Library's IT development Cancel

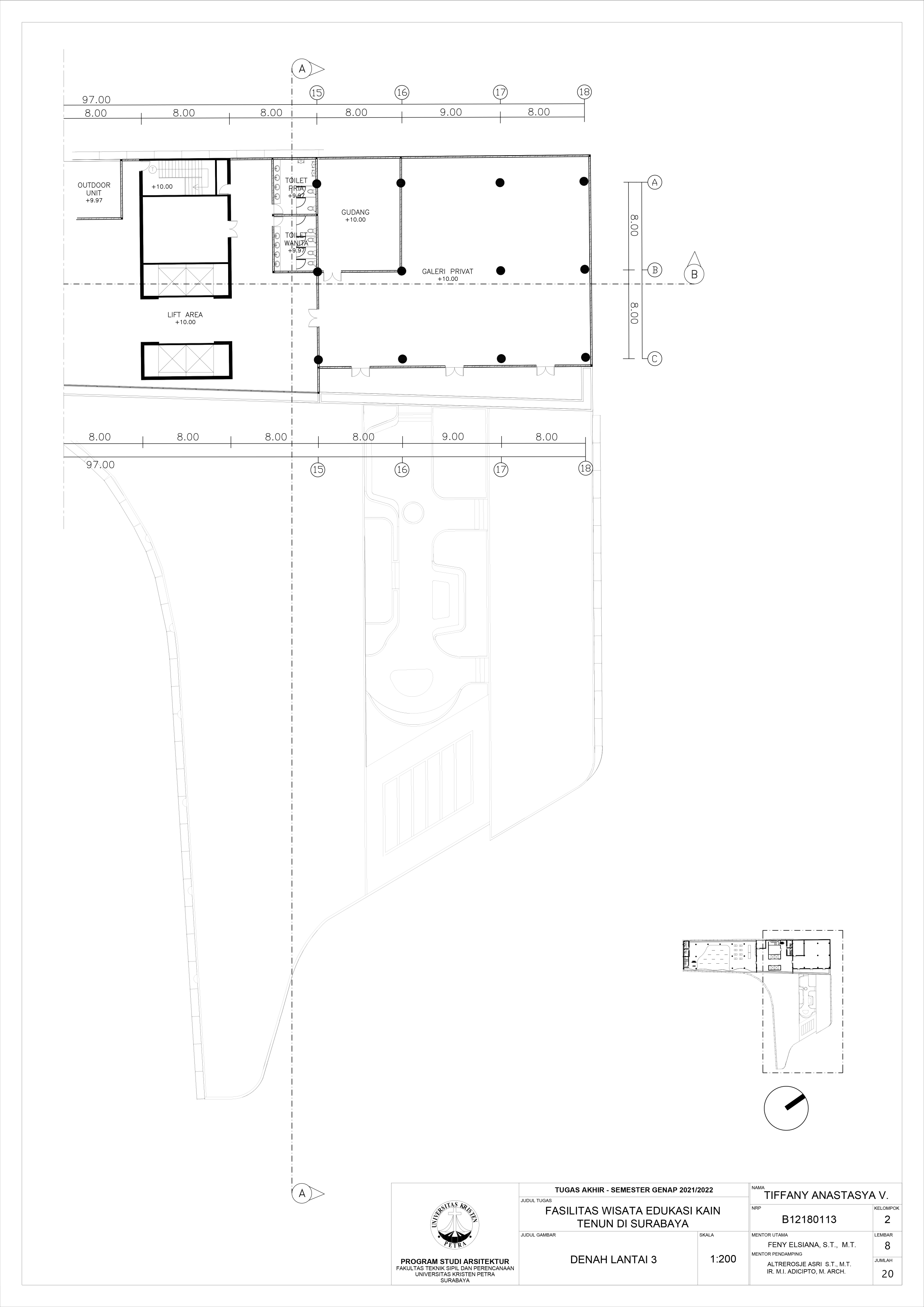
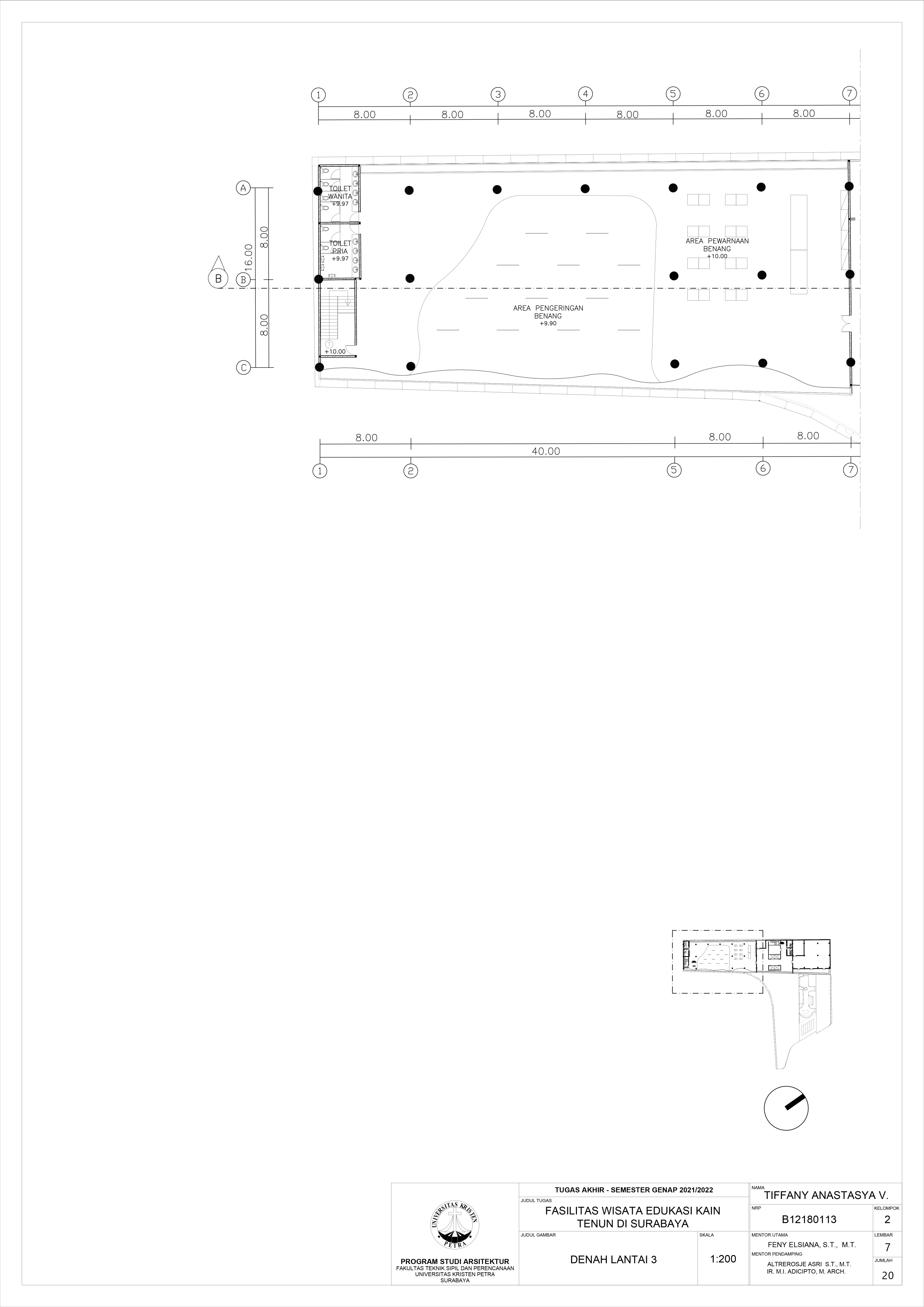
Fasilitas wisata edukasi kain tenun di Surabaya

Wisata tenun merupakan tempat rekreasi di mana pengunjung dapat melihat proses dan hasil pembuatan kain tenun. Sampai saat ini, industri tenun di Indonesia masih menjadi daya tarik wisata lokal maupun internasional. Namun kegiatan wisata ini belum tersorot di ibu kota Jawa Timur, yaitu Surabaya. Maka dari itu, tugas ini merencanakan Fasilitas Eduwisata Kain Tenun di Surabaya. Lokasi yang terpilih adalah di Jl. Panglima Sudirman no. 45. Fasilitas ini dapat menjadi kegiatan rekreasi baru di Surabaya. Dalam rangka merevitalisasi kecintaan penduduk Surabaya akan kain tenun Jawa Timur, fasilitas dibangun dengan pendalaman sequence dan teori behavior setting dimana proses desain akan memperhatikan bagaimana ruang akan membentuk perilaku dan perasaan pengunjung akan kain tenun. Program aktivitas dalam fasilitas ini seperti studi tur, pameran, dan kelas menenun dapat memberikan pengalaman yang tak terlupakan bagi pengunjung. Fasilitas Wisata Edukasi Kain Tenun dengan pendekatan spasial dapat menonjolkan keistimewaan budaya kain tenun Jawa Timur kepada masyarakat.

Creator(s)
  • (B12180113) TIFFANY ANASTASYA VIRGINI
Contributor(s)
  • Feny Elsiana S.T., M.T. → Advisor 1
  • Markus Ignatio Aditjipto → Advisor 2
  • Altrerosje Asri → Advisor 3
  • V.P. Nugroho Susilo → Examination Committee 1
  • Christine Wonoseputro → Examination Committee 2
  • Benny Poerbantanoe → Examination Committee 3
  • Bram Michael Wayne, S.T., M.Ars. → Examination Committee 4
Publisher
Universitas Kristen Petra; 2022
Language
Indonesian
Category
s1 – Undergraduate Thesis
Sub Category
Laporan Perancangan Arsitektur
Source
Laporan Perancangan Arsitektur No. 02024306/ARS/2022; Tiffany Anastasya Virgini (B12180113)
Subject(s)
  • EDUCATION PARKS--DESIGNS AND PLANS
  • RECREATION CENTERS
File(s)

Similar Collection

by creator, contributor, or subject