Please take a moment to complete this survey below

Library's collection Library's IT development Cancel

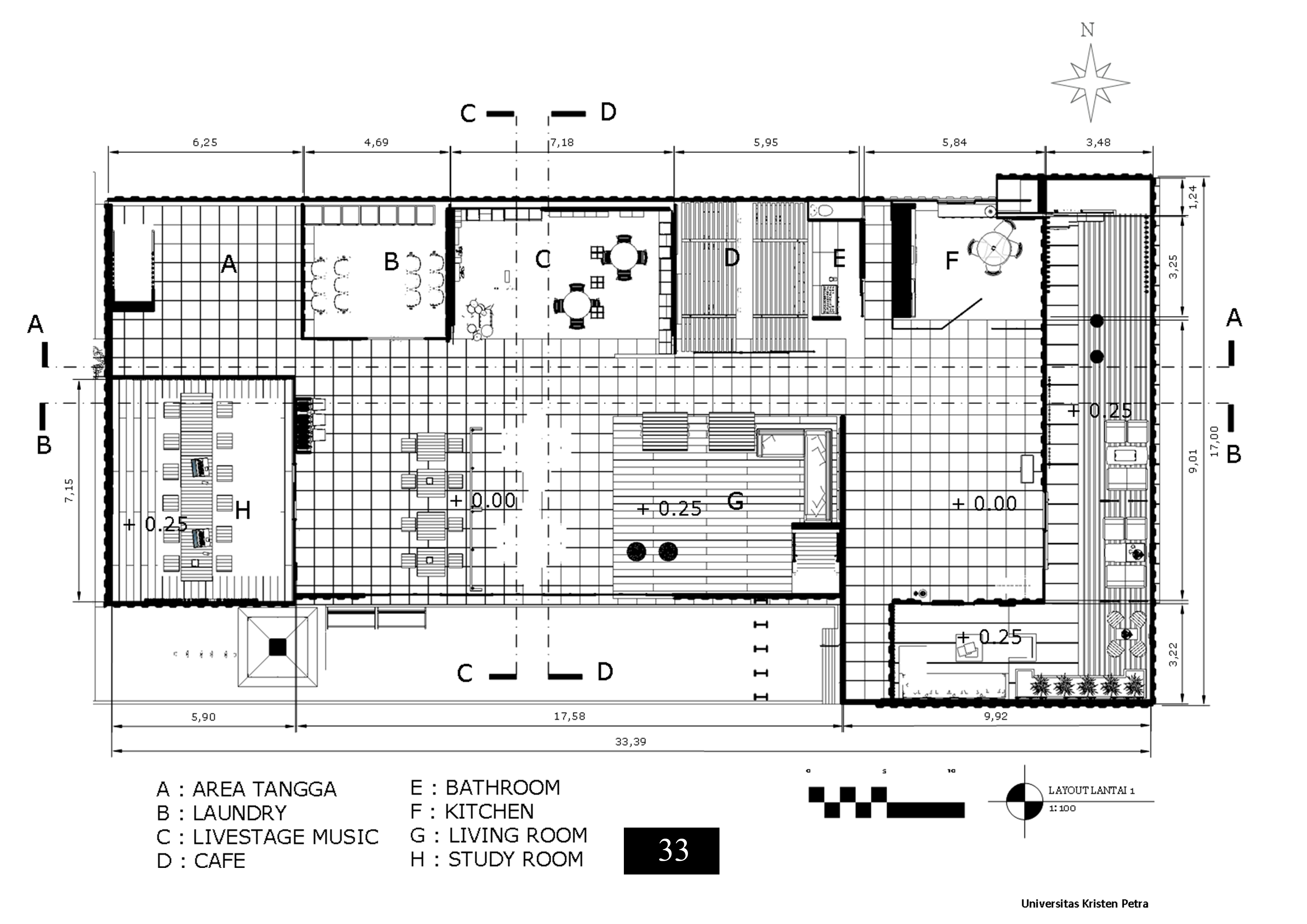
Perancangan interior kontainer sebagai rumah kos di Surabaya

Perancangan interior kontainer sebagai rumah kos di Surabaya Kontainer merupakan salah satu alat angkut barang yang sering digunakan pada saat melakukan pengantaran barang antar negara. Pada zaman modern saat ini limbah Kontainer dapat dialih fungsikan menjadi rumah, restoran, medical, kantor, dan sebagainya. Kontainer yang kerusakan tidak melebihi 50% dapat dimanfaatkan kembali menjadi ruang yang layak huni. Kontainer yang rusak dapat diperbaiki dengan cara didempul dan dicat ulang agar menjadi Kontainer yang utuh kembali. Metode perancangan yang digunakan adalah metode design thinking. Di mana di dalam metode ini ada beberapa tahap yang harus dilakukan. Mulai dari tahap observasi hingga tahap business model canvas. Hasil perancangan desain interior kontainer sebagai rumah kos di Surabaya merupakan rumah kos yang memiliki berbagai macam fasilitas, di antaranya adalah ruang belajar bersama, cafetaria, live stage music, indoor dan outdoor lounge, kamar kos regular dan VIP. Kelebihan dari perancangan ini adalah menggunakan material bekas pakai.

Creator(s)
  • (41416082) MARIA JOAN VALENCIA
Contributor(s)
  • Poppy Firtawentyna → Advisor 1
  • Hedy Constancia Indrani → Examination Committee 1
Publisher
Universitas Kristen Petra; 2021
Language
Indonesian
Category
s1 – Undergraduate Thesis
Sub Category
Perancangan Interior
Source
Perancangan Interior No. 00022001/DIN/2021; Maria Joan Valencia (41416082)
Subject(s)
  • BOARDINGHOUSES--DESIGNS AND PLANS
  • CONTAINERS--DWELLINGS
  • INTERIOR DECORATION
File(s)

Similar Collection

by creator, contributor, or subject