Please take a moment to complete this survey below

Library's collection Library's IT development Cancel

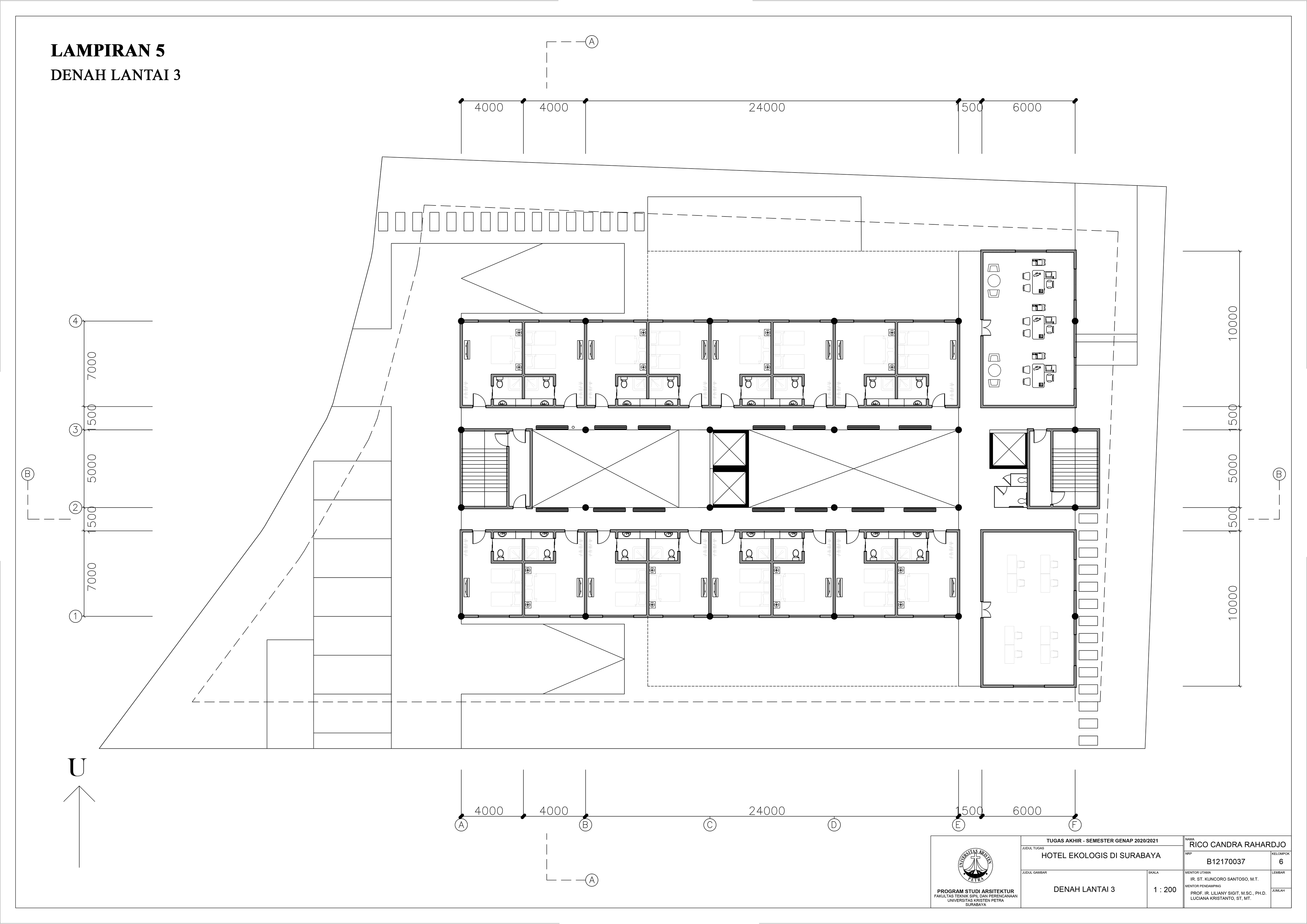
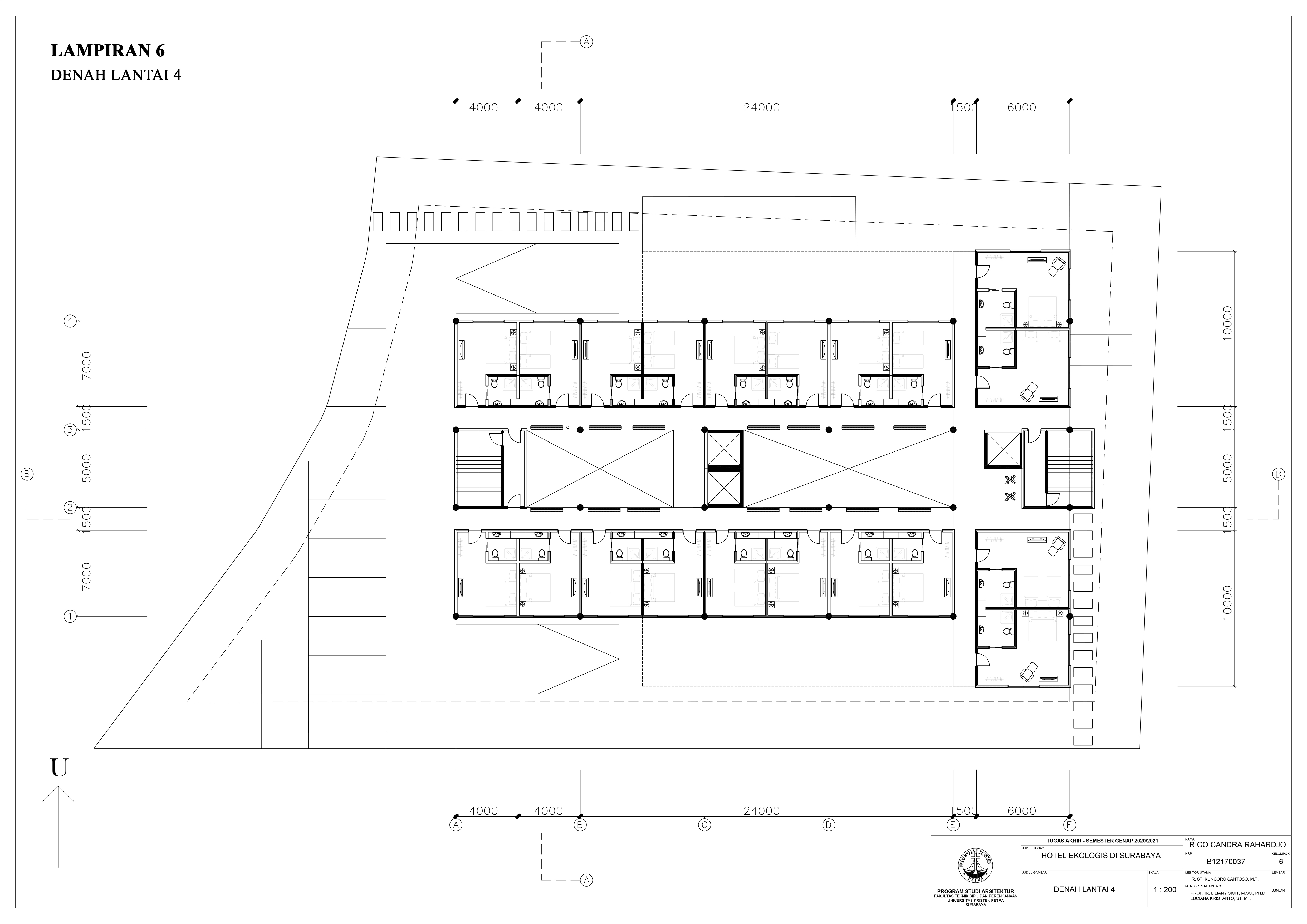
Hotel ekologis di Surabaya

Ciptaan Tuhan yang paling sempurna ialah manusia. Yang memiliki tujuan untuk mengolah bumi dengan baik tanpa harus merusak. Seiring berjalannya waktu dan pergantian zaman, manusia memiliki gairah yang ingin selalu bekerja dan bekerja untuk memenuhi kebutuhan sehari-harinya, sampai akhirnya mereka merasa lelah dan jenuh karena melakukan sesuatu secara berulang-ulang. Karena hal itu, hal yang ampuh untuk mengatasi kejenuhan dan kebosanan adalah dengan perjalanan atau pergi ke suatu tempat rekreasi. Maka dari itu, penulis ingin membuat karya perancangan tempat rekreasi atau hotel ekologis yang bertujuan agar pengunjung atau tamu inap hotel dapat melepaskan kejenuhan dan kebosanan dari kegiatan sehari-hari mereka. Di dalam perancangan hotel tersebut, memiliki sarana rekreasi pendukung dengan tujuan untuk memainkan panca indera pada manusia.

Creator(s)
  • (B12170037) RICO CANDRA RAHARDJO
Contributor(s)
  • Stanislaus Kuntjoro Santoso → Advisor 1
  • Lilianny Sigit Arifin → Advisor 2
  • Luciana Kristanto → Advisor 3
  • Timoticin Kwanda → Examination Committee 1
  • Anik Juniwati → Examination Committee 2
  • Handinoto → Examination Committee 3
  • Sylviana Putri Sunario Soegondo S.T. → Examination Committee 4
Publisher
Universitas Kristen Petra; 2021
Language
Indonesian
Category
s1 – Undergraduate Thesis
Sub Category
Laporan Perancangan Arsitektur
Source
Laporan Perancangan Arsitektur No. 00224200/ARS/2021; Rico Candra Rahardjo (B12170037)
Subject(s)
  • HOTELS--DESIGN AND CONSTRUCTION
  • RECREATION CENTERS
File(s)

Similar Collection

by creator, contributor, or subject