Please take a moment to complete this survey below

Library's collection Library's IT development Cancel

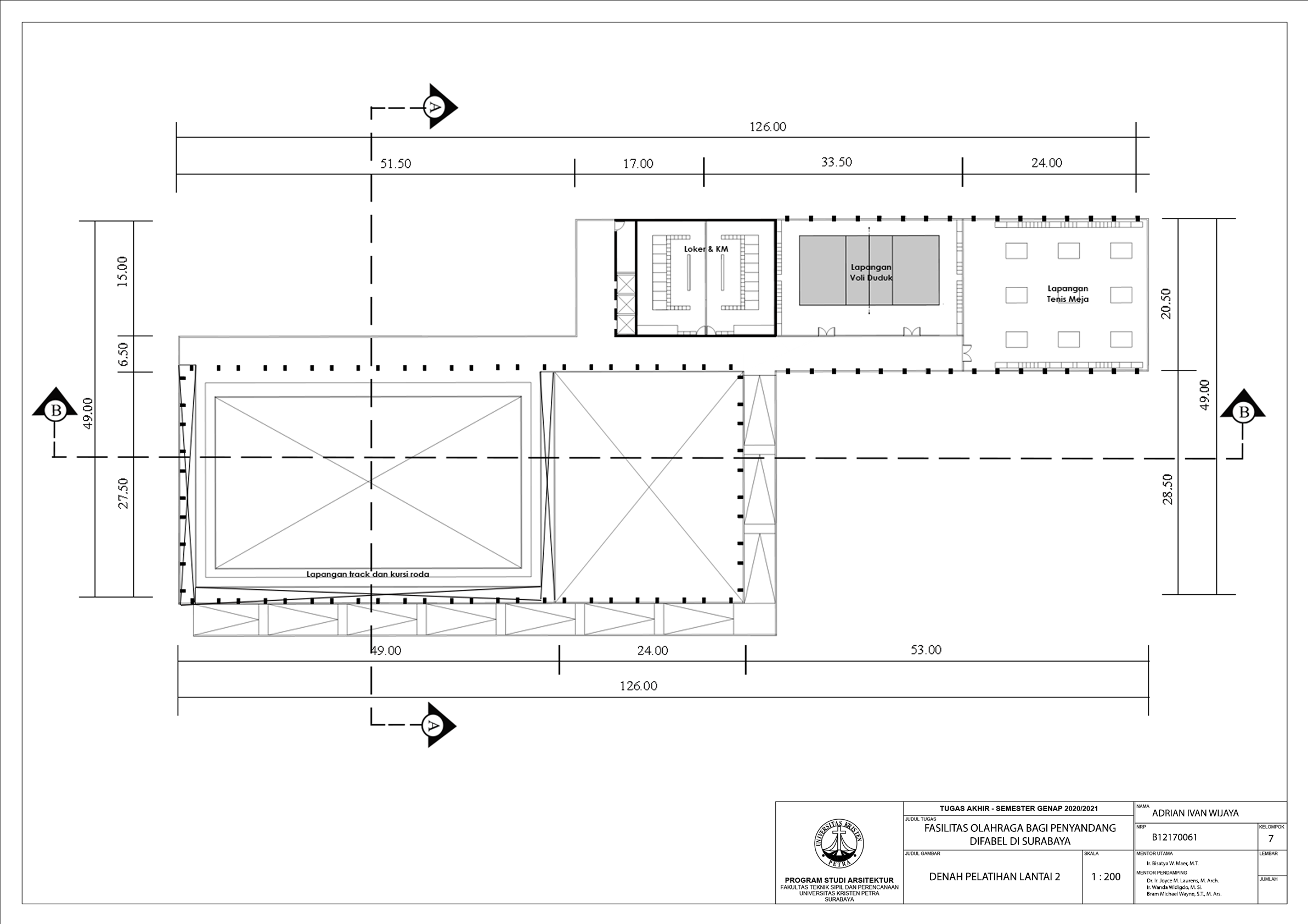
Fasilitas olahraga bagi penyandang difabel di Surabaya

Fasilitas olah raga ini dirancang untuk mewadahi kejuaraan internasional Para Games mendatang untuk cabang olah raga: lawn bowl, bulutangkis, tenis meja, voli duduk, atletik, renang, dan catur. Penyandang disabilitas yang diakomodasi dalam fasilitas ini adalah tunanetra dan pengguna kursi roda. Olah raga yang disediakan untuk penyandang tuna netra adalah lawn bowl, catur, dan atletik yang diletakkan di lantai 1, dan untuk pengguna kursi roda adalah lawn bowl, bulutangkis, atletik, dan renang yang diletakkan di lantai 1, tenis meja, voli duduk, dan track lari dan kursi roda di lantai 2. Menggunakan metode pendekatan perilaku dengan pendalaman wayfinding yang dirancang sedemikian rupa agar pengguna dapat bersikulasi dengan aman, nyaman, dan mandiri sehingga pengguna dapat dengan mudah mengenali ruang dan tempat yang dituju. Pengolahan wayfinding dibagi menjadi 6 elemen arsitektural yaitu transisi lantai yang bertekstur, dinding penanda bertekstur, sirkulasi udara alami, sirkulasi linear pada bangunan, landmark atau penanda, dan sensory garden.

Creator(s)
  • (B12170061) ADRIAN IVAN WIJAYA
Contributor(s)
  • Bisatya Widadya Maer → Advisor 1
  • Joyce M.Laurens → Examination Committee 1
  • Wanda Widigdo Canadarma → Examination Committee 2
Publisher
Universitas Kristen Petra; 2021
Language
Indonesian
Category
s1 – Undergraduate Thesis
Sub Category
Laporan Perancangan Arsitektur
Source
Laporan Perancangan Arsitektur No. 02024213/ARS/2021; Adrian Ivan Wijaya (B12170061)
Subject(s)
  • SPORTS FACILITIES--DESIGNS AND PLANS
  • SPORTS FOR PEOPLE WITH DISABILITIES
File(s)

Similar Collection

by creator, contributor, or subject