Please take a moment to complete this survey below

Library's collection Library's IT development Cancel

Kampung adaptif bagi pemulung di kampung Keputih

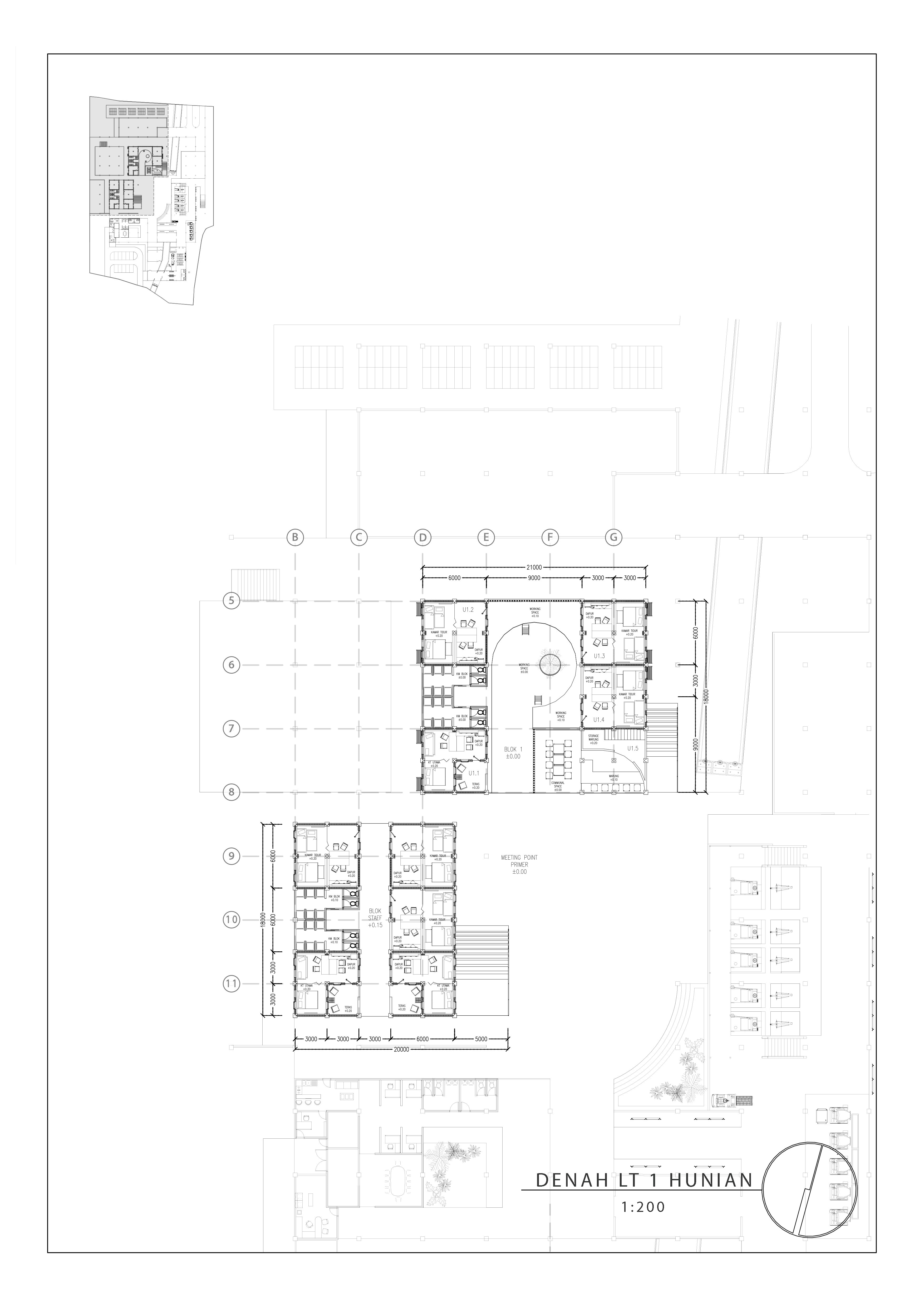
Desain Kampung Adaptif Bagi Pemulung di Keputih merupakan perencanaan bangunan multifungsi selain sebagai hunian, juga sebagai pabrik pengolahan sampah plastik menjadi bahan bangunan sehingga dapat meningkatkan taraf hidup pemulung baik secara ekonomi maupun sosial. Desain ini juga bertujuan untuk menyadarkan masyarakat luas akan pentingnya pemulung dalam proses pengolahan sampah. Keunikan proyek ini adalah pada modul hunian tumbuh yang dapat disesuaikan dengan kebutuhan dan karakteristik penghuni. Blok dan unit yang dapat dimodifikasi serta struktur pada bangunan dapat tumbuh seiring dengan bertambahnya jumlah penghuni. Pendekatan perilaku diaplikasikan untuk memahami kebutuhan pemulung di Keputih yang berkaitan dengan ruang, zoning, sirkulasi, bentuk bangunan, skala, material, dan suasana ruang. Pendalaman desain berfokus ke pendalaman ruang.yang bertujuan untuk menonjolkan konsep dasar proyek akan ruang- ruang hunian yang dapat diodifikasi dan terbentuk berdasarkan karakteristik dan kebutuhan penghuni dengan posibilitas desain dan eksplorasi material yang tidak terbatas.

Creator(s)
  • (22416167) DIVA DANICA DESMONDA
Contributor(s)
  • Rully Damayanti → Advisor 1
  • Stanislaus Kuntjoro Santoso → Advisor 2
  • Luciana Kristanto → Advisor 3
  • Joyce M.Laurens → Examination Committee 1
  • Frans Soehartono → Examination Committee 2
  • Handinoto → Examination Committee 3
Publisher
Universitas Kristen Petra; 2020
Language
Indonesian
Category
s1 – Undergraduate Thesis
Sub Category
Laporan Perancangan Arsitektur
Source
Laporan Perancangan Arsitektur No. 01024148/ARS/2020; Diva Danica Desmonda (22416167)
Subject(s)
  • SANITATION WORKERS
  • VILLAGES--PLANNING
File(s)

Similar Collection

by creator, contributor, or subject