Please take a moment to complete this survey below

Library's collection Library's IT development Cancel

Fasilitas belajar dan bermain untuk anak balita dan SD di Surabaya

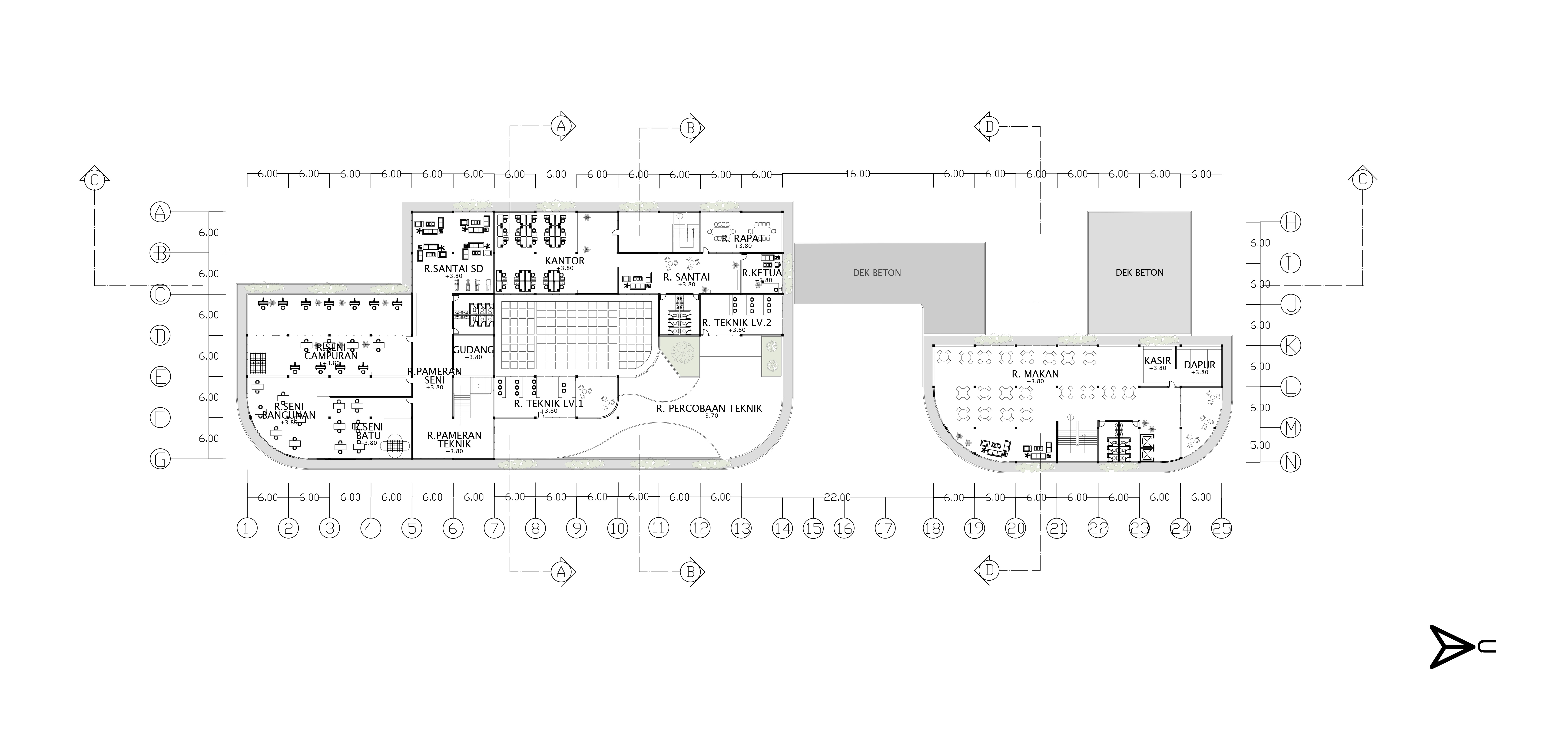
Desain Fasilitas Belajar dan Bermain untuk Anak Balita dan SD di Surabaya ini didasari oleh pengamatan kondisi anak masa kini yang cenderung bermain gadget dikarenakan kurangnya fasilitas belajar dan bermain yang memadai di Surabaya. Program STEAM yang dipilih sangat cocok untuk anak generasi kini. Masalah desain yang diangkat adalah pemisahan area balita dan SD sehingga anak dapat bermain dan belajar dengan kondusif, selain itu anak juga harus tetap merasa aman dan nyaman walaupun tanpa dampingan orang tuanya. Pendekatan desain yang dilakukan adalah memahami tingkah laku dan kebiasaan anak usia balita dan SD menurut teori Parten & Erikson. Karakter ruang dirancang sesuai untuk aktivitas belajar dan bermain anak. Keunikan proyek ini ada pada sirkulasinya dimana anak balita dan anak SD dapat berinteraksi secara visual namun tidak secara fisik agar kegiatan berlangsung secara kondusif. Selain itu, adanya keberagaman bentuk ruang yang sesuai untuk tiap program kegiatan sehingga anak tidak mudah bosan.

Creator(s)
  • (22416060) AMELIA CHANDRA
Contributor(s)
  • Joyce M.Laurens → Advisor 1
  • Handinoto → Advisor 2
  • Frans Soehartono → Advisor 3
  • Lilianny Sigit Arifin → Examination Committee 1
  • Samuel Hartono → Examination Committee 2
  • Sylviana Putri Sunario Soegondo S.T. → Examination Committee 3
Publisher
Universitas Kristen Petra; 2020
Language
Indonesian
Category
s1 – Undergraduate Thesis
Sub Category
Laporan Perancangan Arsitektur
Source
Laporan Perancangan Arsitektur No. 00024074/ARS/2020; Amelia Chandra (22416060)
Subject(s)
  • PLAYGROUNDS--DESIGN AND CONSTRUCTION
File(s)

Similar Collection

by creator, contributor, or subject