Please take a moment to complete this survey below

Library's collection Library's IT development Cancel

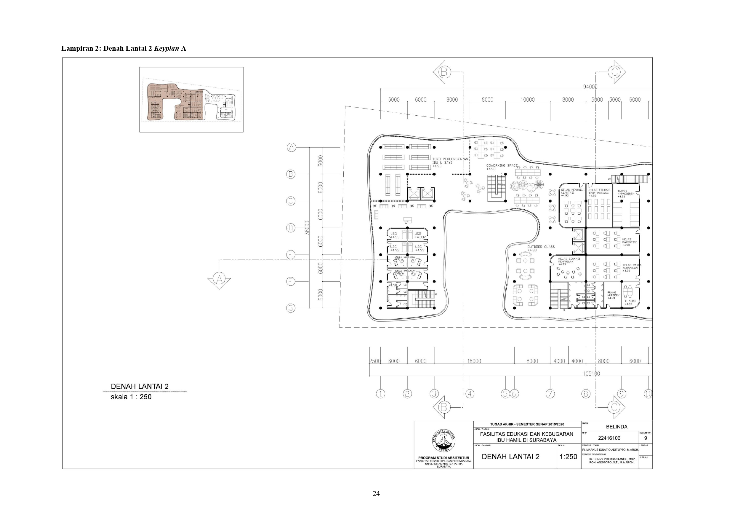
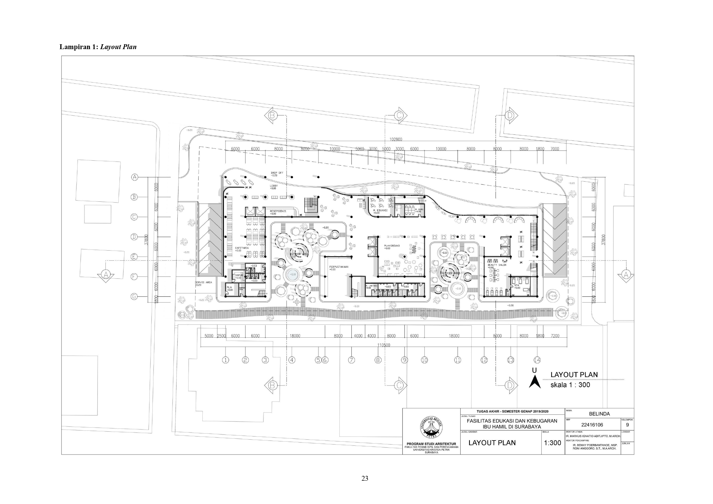
Fasilitas edukasi dan kebugaran ibu hamil di Surabaya

Kebutuhan ibu hamil sangat beragam sehingga dihadirkan Fasilitas Edukasi dan Kebugaran Ibu Hamil di Surabaya. Fasilitas ini bertujuan untuk mewadahi kebutuhan ibu hamil baik dari segi fisik maupun psikis sesuai dengan umur kandungannya. Fasilitas ini memiliki berbagai aktivitas fisik yang dapat meningkatkan kebugaran ibu hamil. Selain itu juga tersedia kelas-kelas untuk memberi edukasi pada ibu hamil seputar kandungannya. Ibu hamil sendiri memiliki karakter yang mudah berubah perasaannya, sehingga pada fasilitas ini diberi tempat-tempat terbuka dan area hijau. Fasilitas ini didesain berdasarkan perilaku dan karakter ibu hamil. Lingkungan yang positif tentu dapat membentuk perilaku ibu hamil yang lebih baik dan dilengkapi dengan aktivitas yang mendukung. Bentuk dari fasilitas menyesuaikan fungsi dan ruang yang disediakan. Oleh karena itu, diharapkan fasilitas ini dapat menjadi wadah untuk memenuhi kebutuhan ibu hamil.

Creator(s)
  • (22416106) BELINDA
Contributor(s)
  • Markus Ignatio Aditjipto → Advisor 1
  • Roni Anggoro → Advisor and Examination Committee
  • Rony Gunawan → Examination Committee 1
  • Wanda Widigdo Canadarma → Examination Committee 2
  • Angela Christysonia Tampubolon → Examination Committee 3
Publisher
Universitas Kristen Petra; 2020
Language
Indonesian
Category
s1 – Undergraduate Thesis
Sub Category
Laporan Perancangan Arsitektur
Source
Laporan Perancangan Arsitektur No. 00024107/ARS/2020; Belinda (22416106)
Subject(s)
  • HEALTH FACILITIES
  • SPORTS CENTERS
File(s)

Similar Collection

by creator, contributor, or subject